Great

We just sent you an email.
Check your inbox and follow the prompts.


See you soon,
Team Momo

Skip to main content

Alpenumbra

The perfect blend of spacious living, sustainability, and modern design.

The backyard that’s built to impress.

Sleek design, efficient space.

Open, airy, and full of possibilities.

Every moment feels like a retreat.

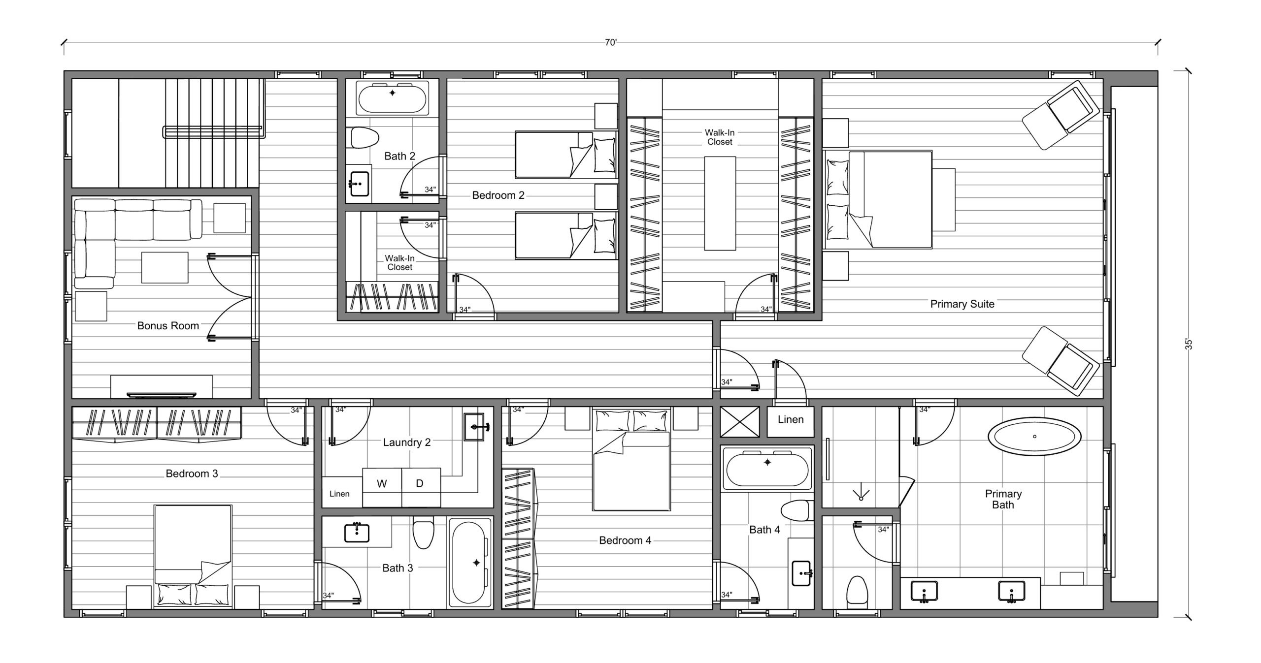
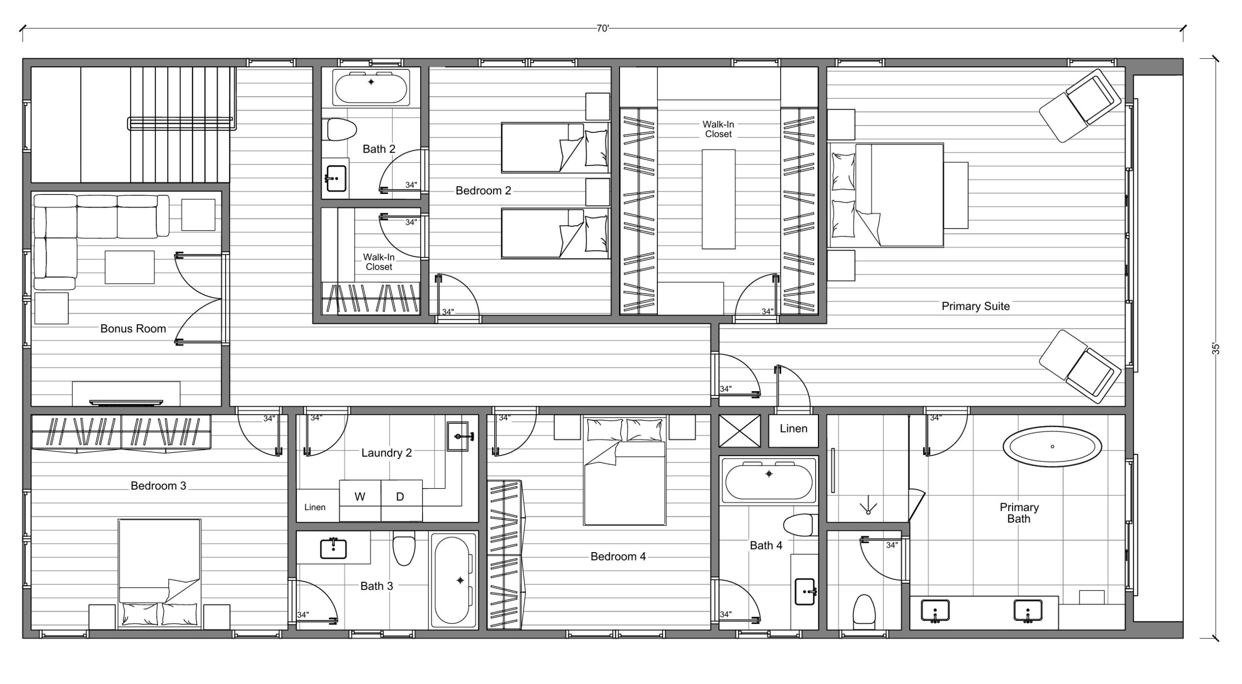
Alpenumbra Layout

MOMO Alpenumbra

Conditioned Square Footage: 3,962 sq ft

Total Square Footage: 4,747 sq ft

Ground Floor
Upper Floor

Vitals

Construction Highlights

Two-story; steel frame; proprietary Surefoot foundation.

Aesthetic

Thoughtful, bright, minimal. 

Conditioned Living Area

3,962 sq. ft.

Common Rooms

Open-concept kitchen, dining, and living area with an oversized island. Includes a dedicated study and laundry room.

Bedrooms

Primary Suite plus 4 bedrooms +  Study. 

Bathrooms

5.5 Bathrooms

Roof Style

Options include: gabled.

Roof Construction

Cold-formed steel.

Windows

The Alpenumbra model features striking steel and glass exterior doors for a bold, modern entry, while solid wood interior doors add warmth and privacy throughout the home.

Doors

Options include: Sliding glass, French, and more.

Garage

Smart car system; EV-ready.

Solar Ready

Upgrade to a solar, battery, and EV charger sustainable package.

Interested?

Contact us for more information.