Great

We just sent you an email.
Check your inbox and follow the prompts.


See you soon,
Team Momo

Skip to main content

SEED ADU

The best things come in small packages.

HELLO,
GORGEoUS.

A lifetime supply of rejuvenation
comes free with every home.

Designed by
architects.
Built by engineers.
Crafted by love.

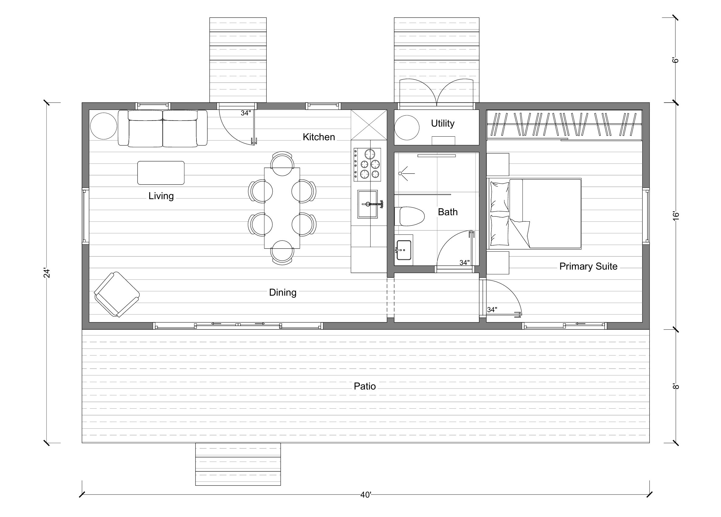
Seed ADU Layout

MOMO Seed ADU

Conditioned Square Footage: 563 sq ft

Total Square Footage: 640 sq ft

Vitals

Construction Highlights

Steel frame; proprietary Surefoot foundation. 

Aesthetic

Thoughtful, bright, minimal. Harmonizes with your existing property.

Conditioned Living Area

563 sq. ft.

Common Rooms

Open plan kitchen / living room.

Bedrooms

One bedroom primary suite.

Bathrooms

1 Bathroom.

Roof Style

Gabled roof.

Roof Construction

Cold formed steel.

Windows

Heavy-gauge aluminum windows offer strength, clean lines, and thermal break efficiency.

Doors

Exterior: glass and aluminum
Interior: solid wood

Solar Ready

Upgrade to solar
sustainable package.

Interested?

Contact us for more information.