Great

We just sent you an email.
Check your inbox and follow the prompts.


See you soon,
Team Momo

Skip to main content

Seed Studio ADU

Your quiet haven, just steps from home.

Strong lines, soft living — your future starts here.

Clean lines, warm tones, and room to create.

MOMO Homes Seed Studio ADU
MOMO Homes Seed Studio ADU

A room shaped for conversation, comfort, and calm.

Simplicity and serenity, crafted with purpose.

MOMO Homes Seed Studio ADU

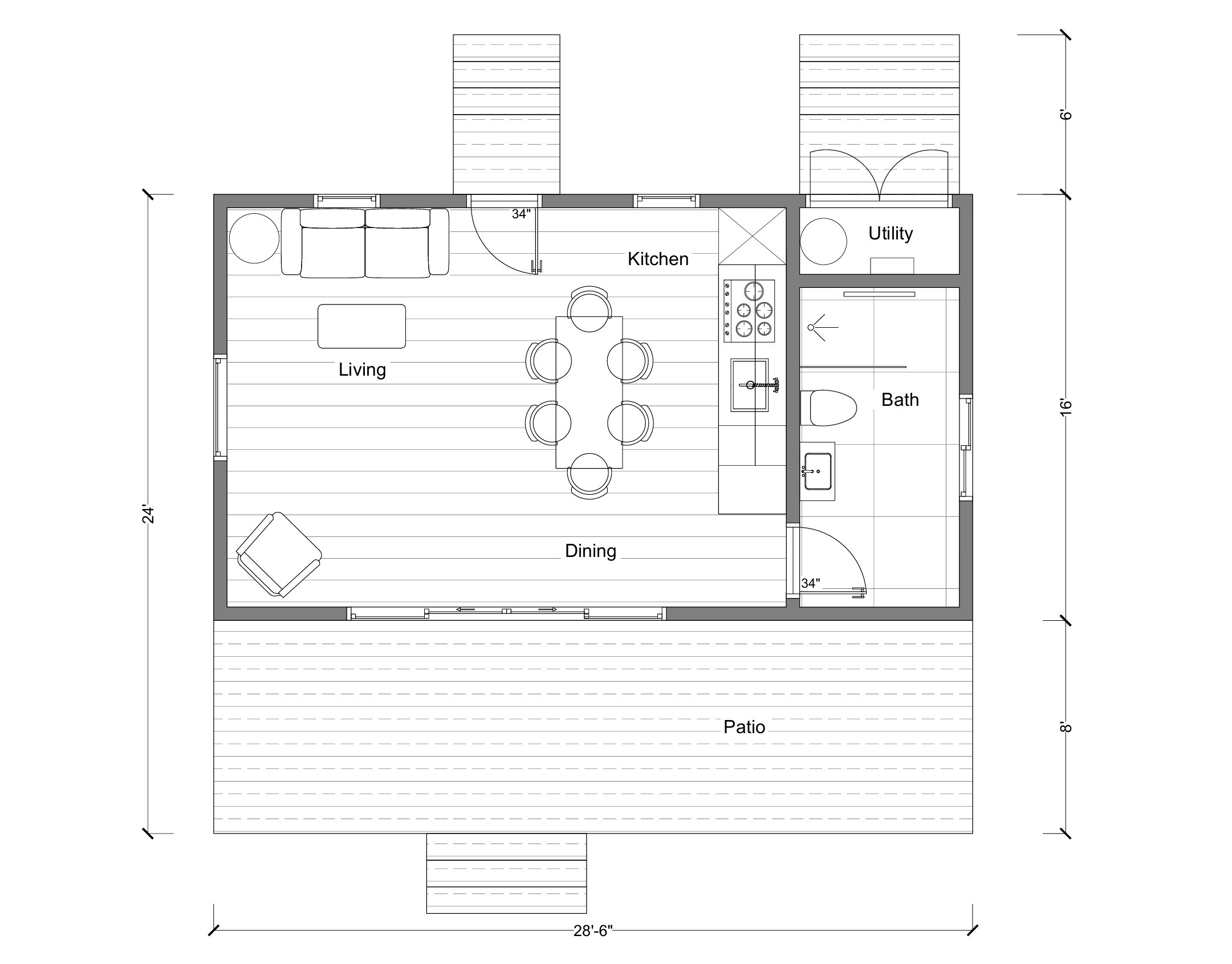
Seed Studio ADU Layout

MOMO Seed Studio ADU

Conditioned Square Footage: 393 sq ft

Total Square Footage: 455 sq ft

MOMO Homes Seed Studio ADU

Vitals

Construction Highlights

Steel frame; proprietary Surefoot foundation. 

Aesthetic

Thoughtful, bright, minimal. Harmonizes with your existing property.

Conditioned Living Area

393 sq. ft.

Common Rooms

Open-concept kitchen, dining, and living area with direct access to an outdoor terrace. Includes a dedicated utility room.

Bedrooms

Open kitchen-living room.

Bathrooms

1 Bathroom

Roof Style

Gabled roof.

Roof Construction

Cold formed steel.

Windows

Heavy-gauge aluminum windows offer strength, clean lines, and thermal break efficiency.

Doors

Exterior: glass and aluminum
Interior: solid wood

Solar Ready

Upgrade to solar, battery, and EV charger sustainable package

Interested?

Contact us for more information.