Great

We just sent you an email.
Check your inbox and follow the prompts.


See you soon,
Team Momo

Skip to main content

Penumbra

An essentialist aesthetic.

So modern.
So elegant.
So gorgeous.

All the
natural
light you
can handle.

Because “I’d like more clutter” said no one ever.

Design so clean
you could eat
off it.

Really, it’s more hermitage than bedroom.

Crafted with
just enough
design, and
no more.

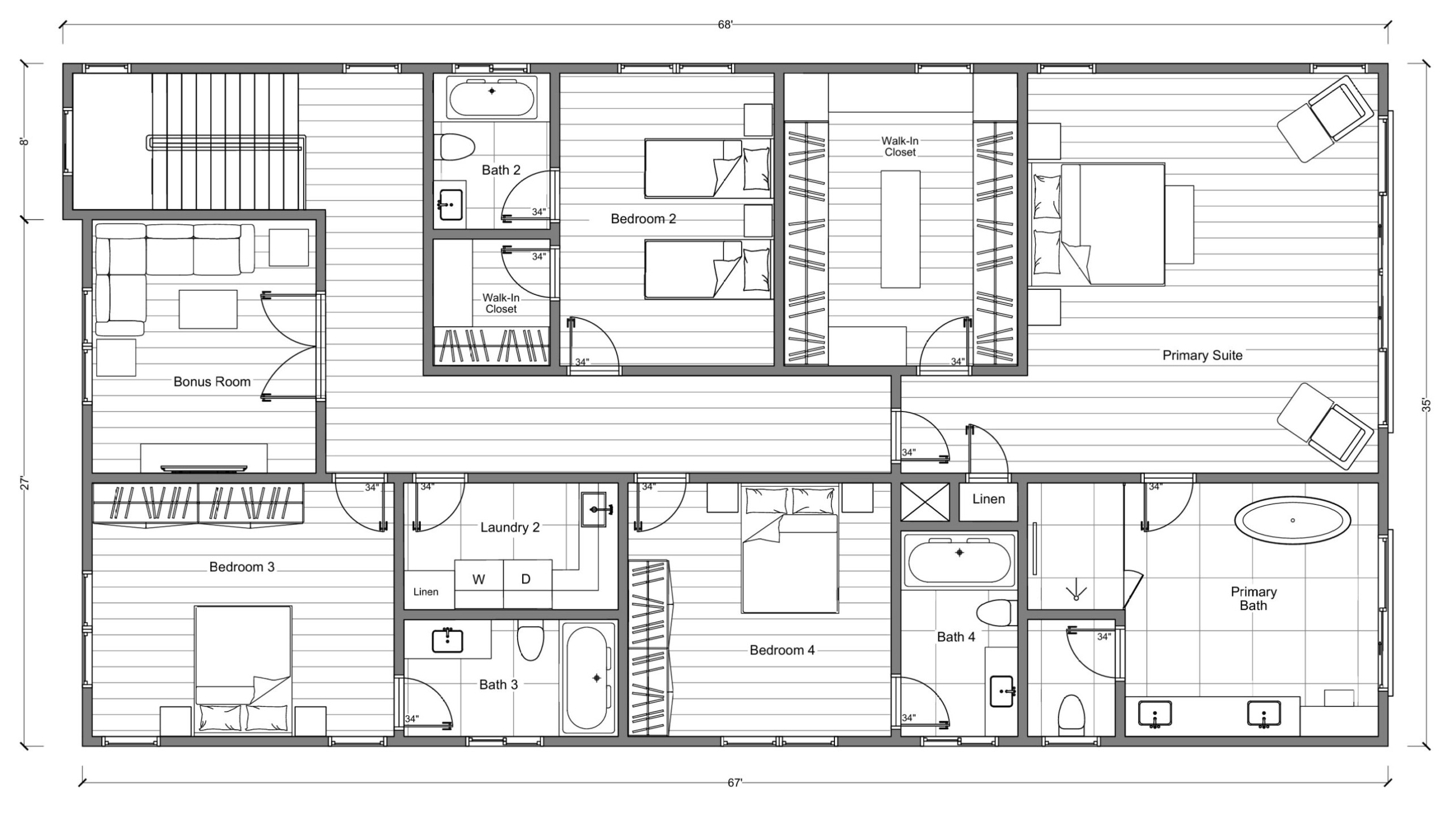
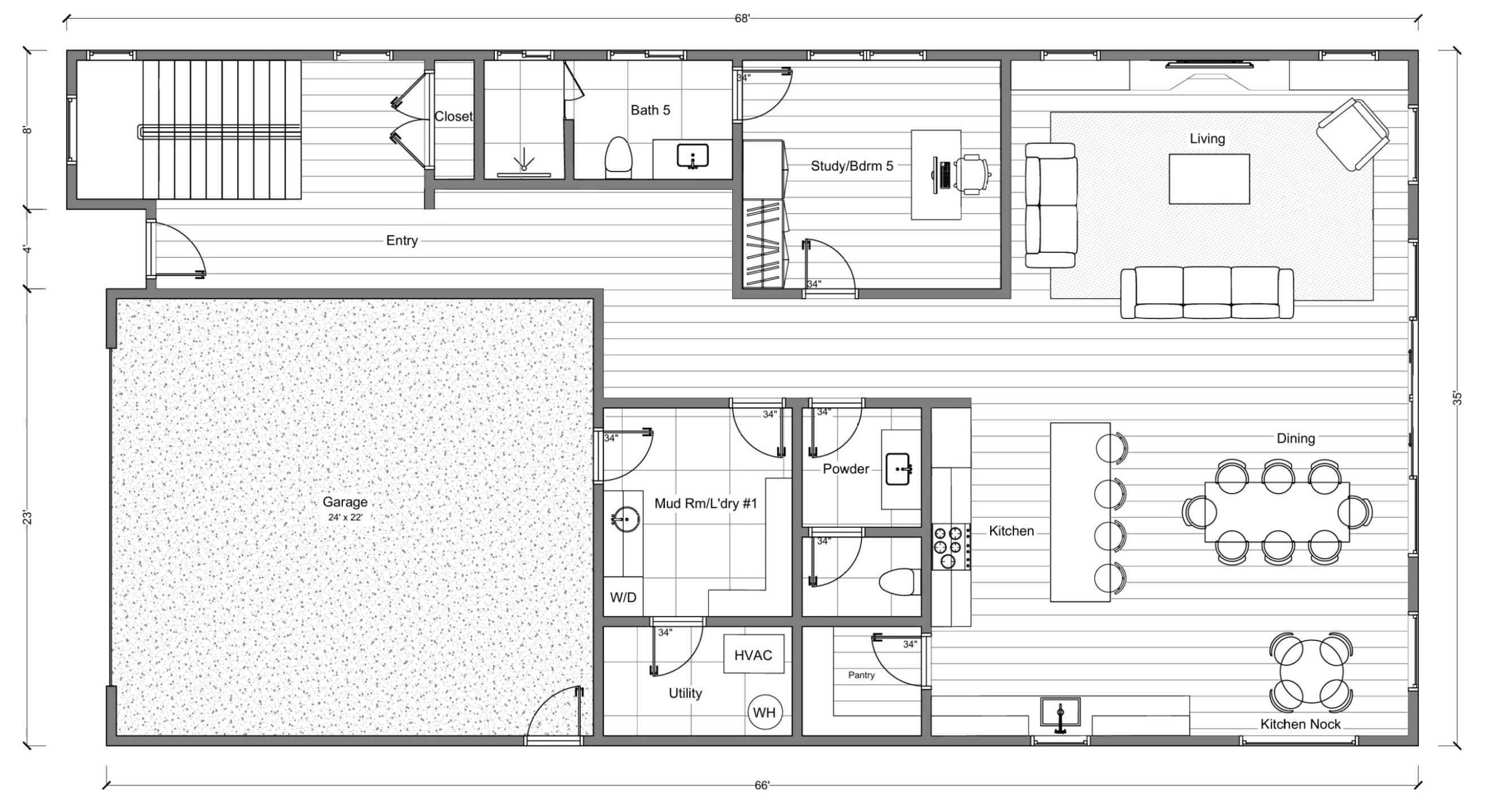
Penumbra Layout (TWO STORY)

MOMO Penumbra

Conditioned Square Footage: 4,010 sq ft

Total Square Footage: 4,585 sq ft

Ground Floor
Upper Floor

Vitals

Construction Highlights

Two-story; cold-formed-steel frame; proprietary Surefoot foundation. 

Aesthetic

Spacious, bright, minimal.

Conditioned Living Area

4,010 sq. ft.

Common Rooms

The Penumbra’s open-concept kitchen flows into the dining and living area, anchored by an oversized island. Enjoy a spacious pantry, dedicated laundry room, and a private study—every detail designed for effortless, modern living.

Bedrooms

5.5 total: A primary suite and 4 bedrooms + study.

Bathrooms

5.5 total: The primary suite features an ensuite with a freestanding bathtub and a curbless shower.

Roof Style

Flat, with internal drainage.

Roof Construction

Cold-formed steel.

Windows

Heavy-gauge aluminum windows offer strength, clean lines, and thermal break efficiency.

Doors

The Penumbra model features striking steel and glass exterior doors for a bold, modern entry, while solid wood interior doors add warmth and privacy throughout the home.

Garage

Smart two-car system; EV-ready.

Solar Ready

Upgrade to solar
sustainable package.

Interested?
Contact us for more information.