Great

We just sent you an email.
Check your inbox and follow the prompts.


See you soon,
Team Momo

Skip to main content

Birmingham

Where charm meets comfort.

Your private backyard escape.

Designed to make you stay.

The heart of the home.

Luxury in every detail.

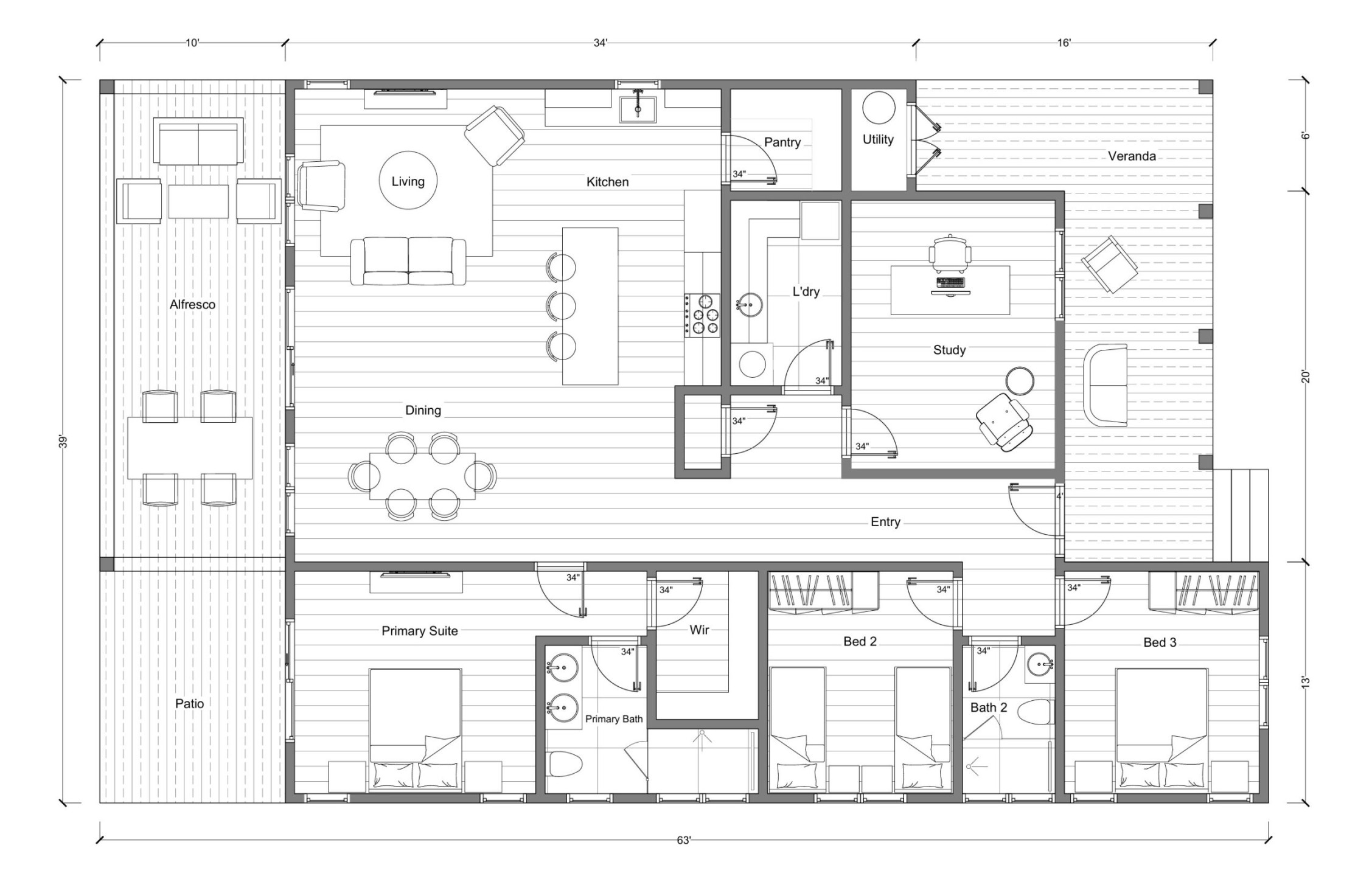
Birmingham Layout

MOMO Birmingham

Conditioned Square Footage: 1,712 sq ft

Total Square Footage: 1,989 sq ft

Vitals

Construction Highlights

Steel frame; proprietary Surefoot foundation. 

Aesthetic

Thoughtful, bright, minimal. Harmonizes with your existing property.

Conditioned Living Area

1,712 sq. ft.

Common Rooms

Open plan kitchen/living room.

Bedrooms

3+ total: A primary suite plus two bedrooms, plus a study.

Bathrooms

2 total

Roof Style

Options include: gabled. 

Roof Construction

Cold formed steel.

Windows

Heavy-gauge aluminum windows offer strength, clean lines, and thermal break efficiency.

Doors

Exterior: glass and aluminum
Interior: solid wood

Solar Ready

Upgrade to solar
sustainable package.

Interested?

Contact us for more information.